Quiénes Somos
Desarrollo Sostenible
Gestion Social
Manos a la Obra
Plan Bienestar
Centro Sur Solidaria
Apartamento Machado 893-4249
893-4249
Imágenes
Descripción del inmueble
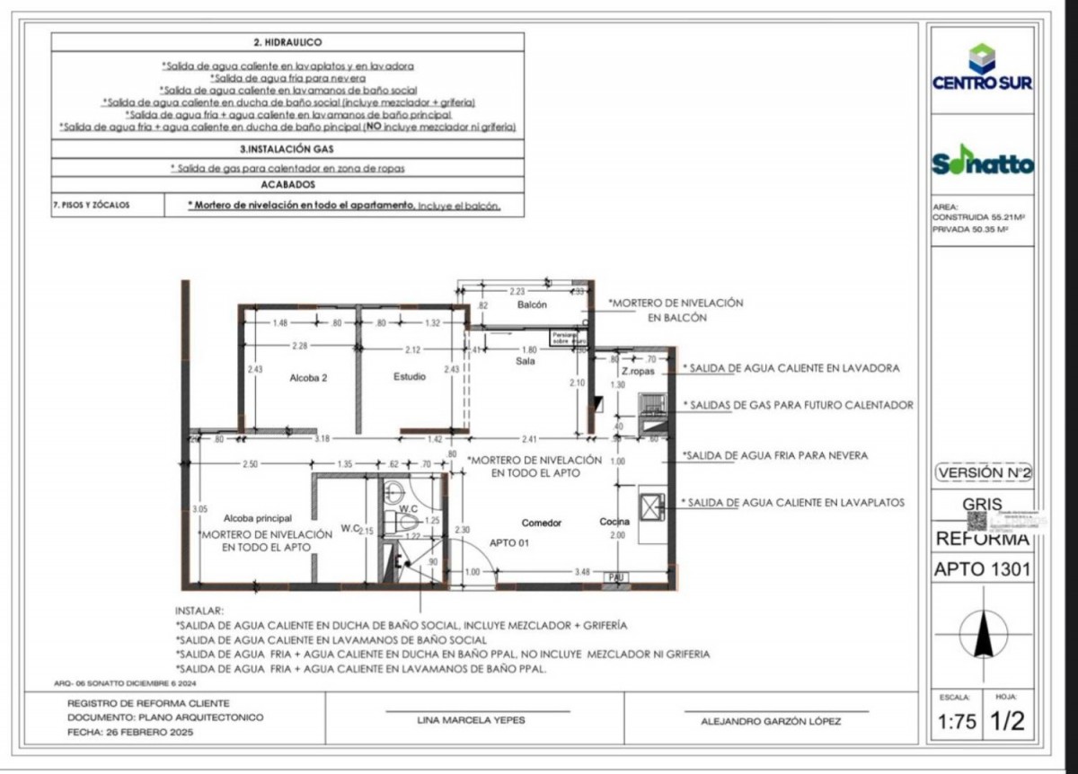
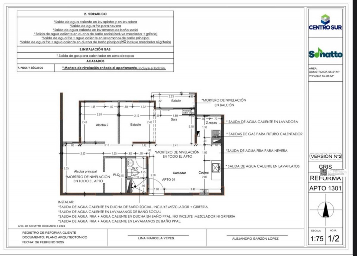
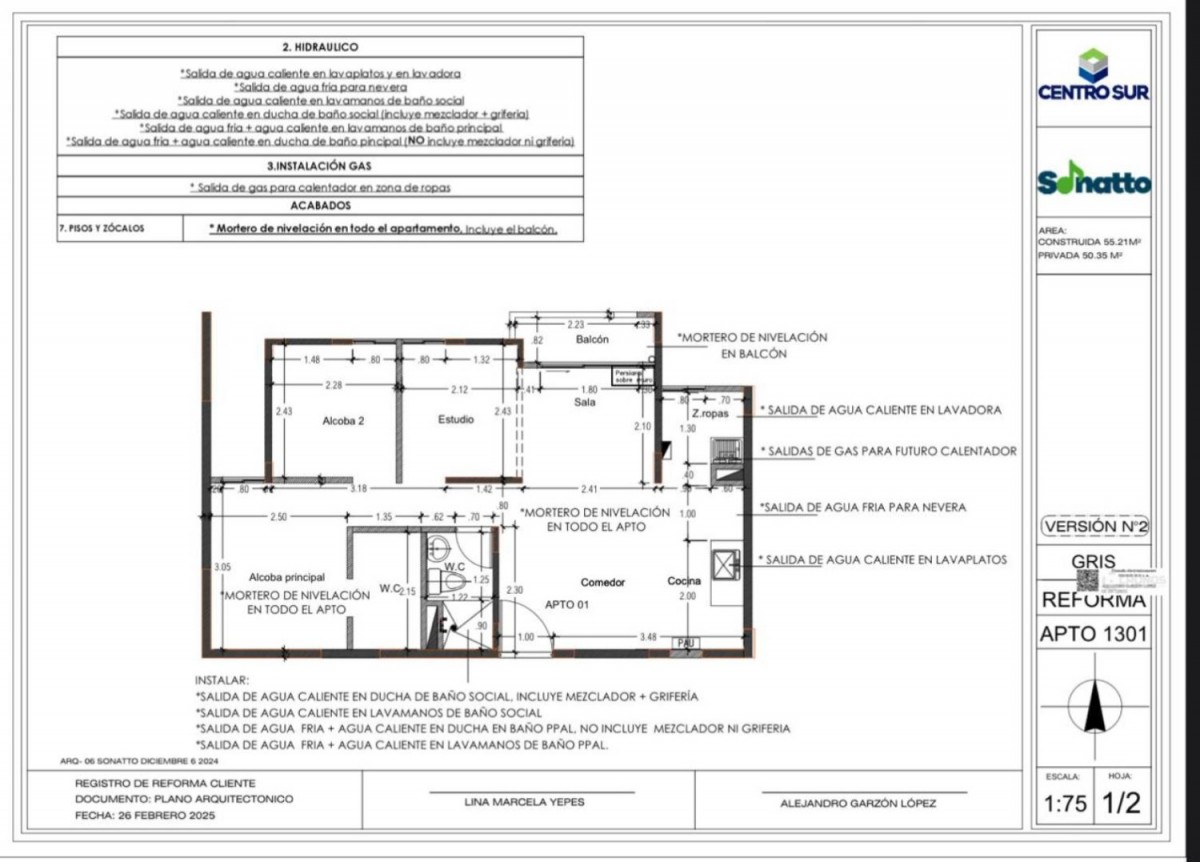
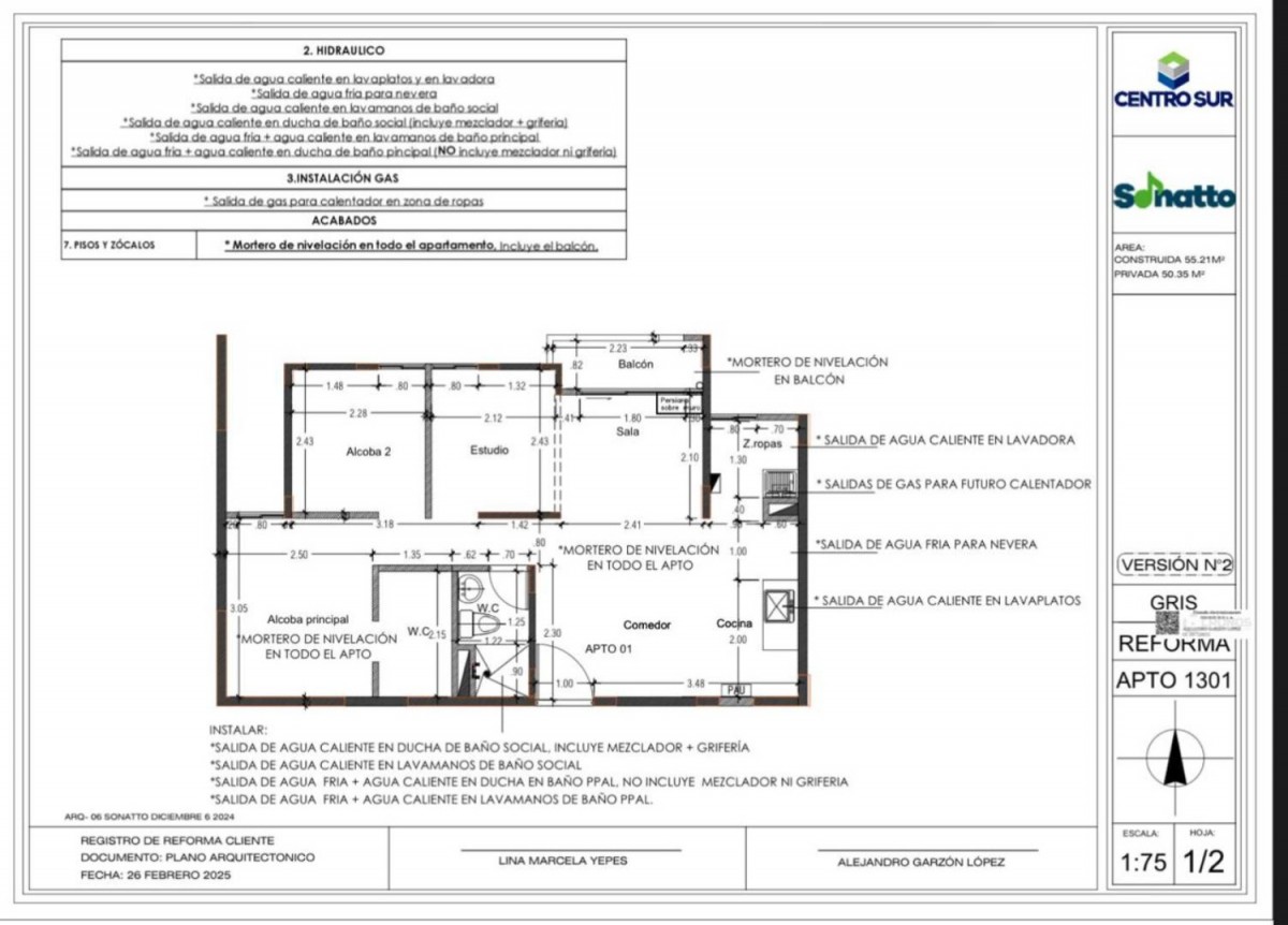
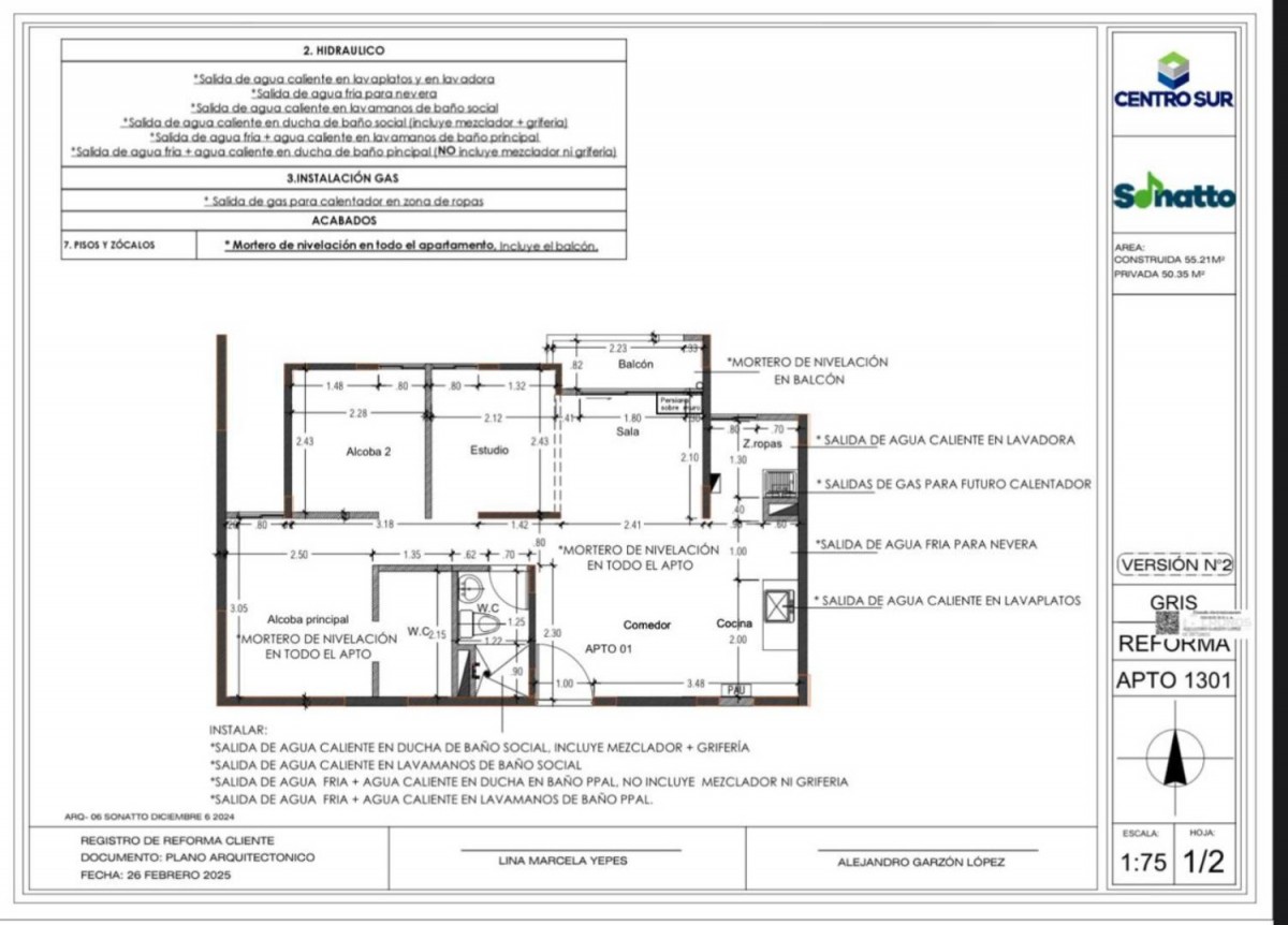
Se Vende Cesión De Derechos De Apartamento Proyecto VIS Ubicado En El Sector Machado Copacabana Zona De Alta Valorización La Entrega Escriturada Está Proyectada Para El Segundo Semestre De 2026. La Venta Incluye Un Valor Agregado Significativo Parqueadero Privado Opcional Y Una Reforma Que Ya Contempla La Instalación Hidráulica Completa Agua Fría Y Agua Caliente, Además Del Mortero En Pisos. Es Totalmente Apto Para Trámites De Subsidios De Vivienda. Consta De 3 Alcobas Con Posibilidad De Adecuar La Tercera Como Estudio, Cocina, Sala Comedor, Zona De Ropas, Balcón Y 2 Baños. Unidad Cerrada, Con Portería 24 7 Y 2 Ascensores Por Torre, Además De 18 Zonas Comunes Diseñadas Para El Bienestar Familiar. Cuenta Con Fácil Acceso A Rutas De Transporte Público, Y Se Ubica A Solo 5 Minutos Del Centro Comercial Puerta Del Norte Y De La Estación Niquía Del Metro. Las Fotos Publicadas Son Ilustrativas Del Proyecto Y Sus áreas. Matrícula N. 025, Resolución 1677 Del 31 De Octubre De 2023. 893-4249
UBICACIÓN: Machado, Copacabana, Antioquia | ESTADO DEL INMUEBLE: | ESTRATO:
ESPECIFICACIONES INTERNAS
ESPECIFICACIONES
EXTERNAS
Ubicación del inmueble
Inmuebles similares
Cerrar
Cerrar
Cerrar

Operador experto
Senior's Club